Studio Neumann
Köln, 2019
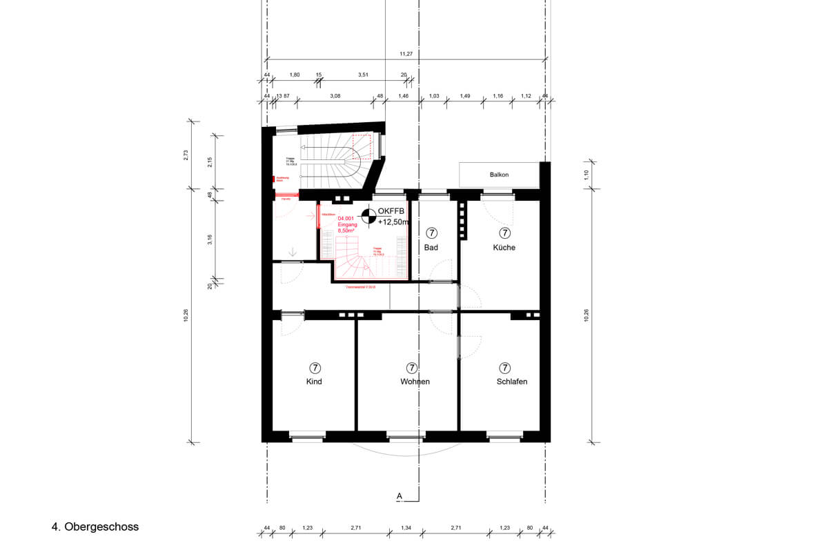
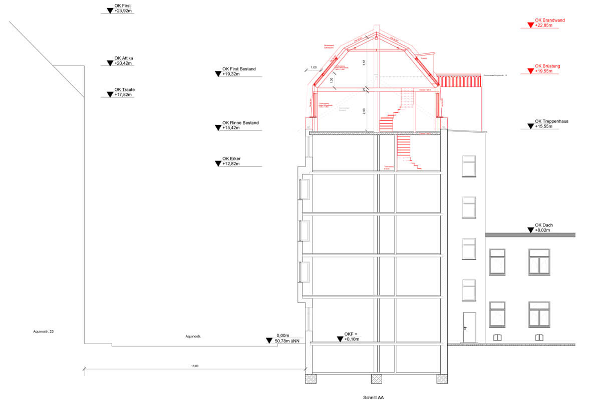
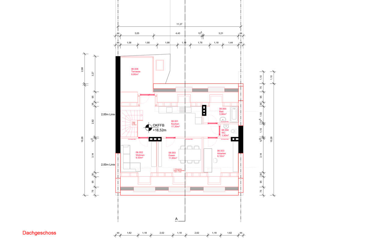
Aufstockung eines Wohn- und Geschäftsgebäudes in Form eines Mansarddaches mit Maisonettewohnung. Entwurf und Genehmigungsverfahren