Studio Neumann
Wuppertal, 2023 – heute
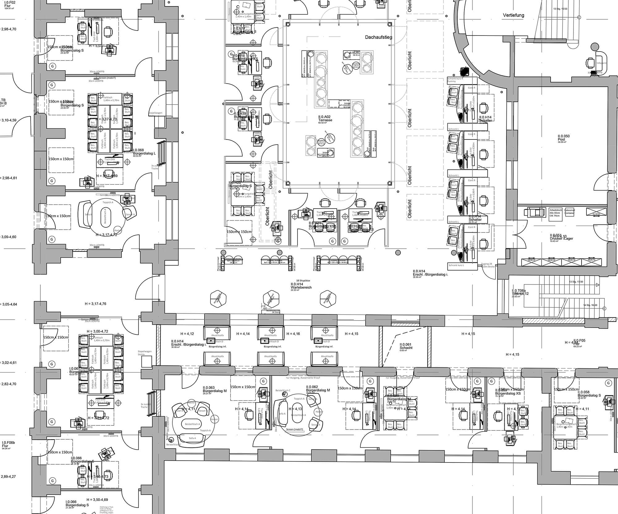
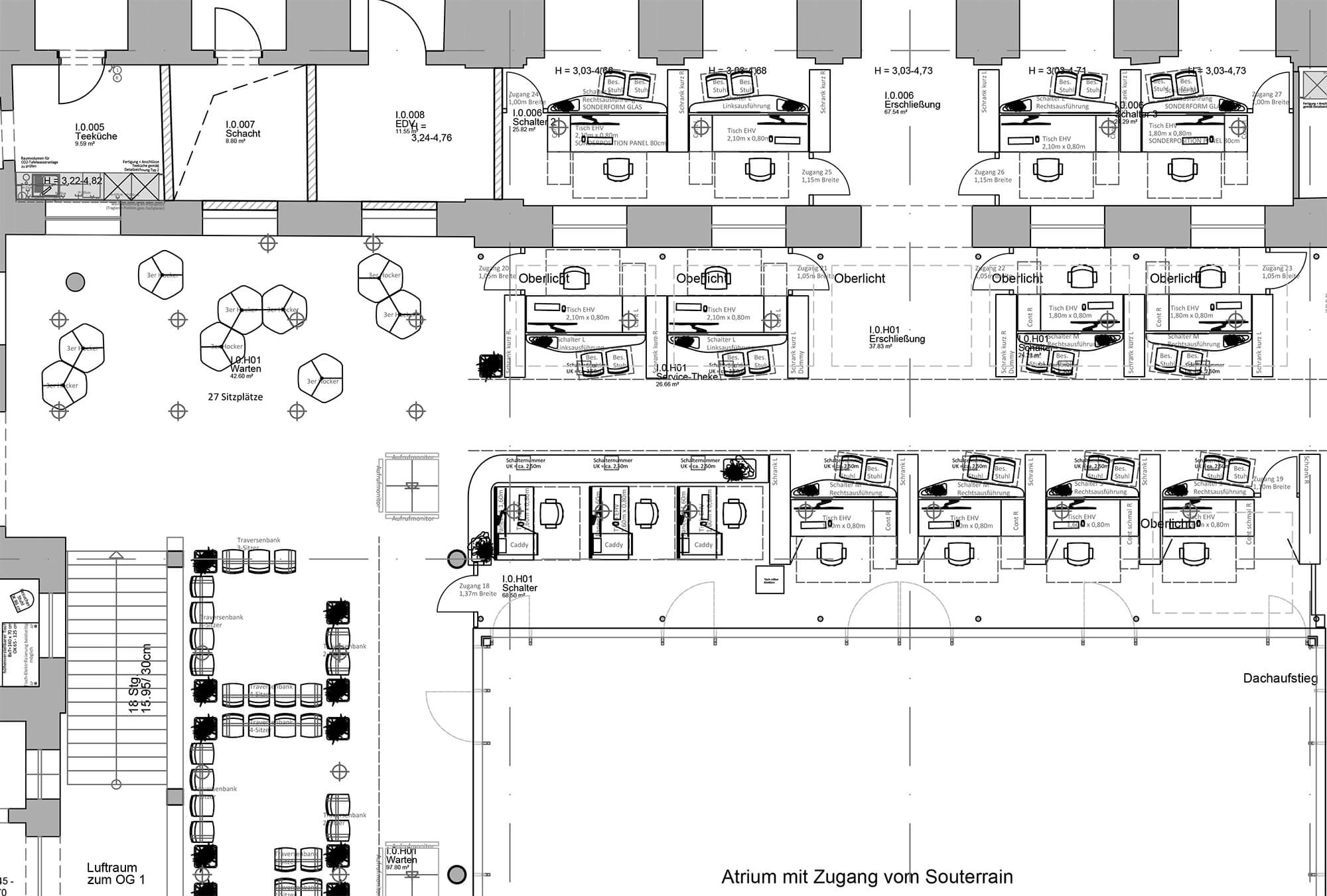
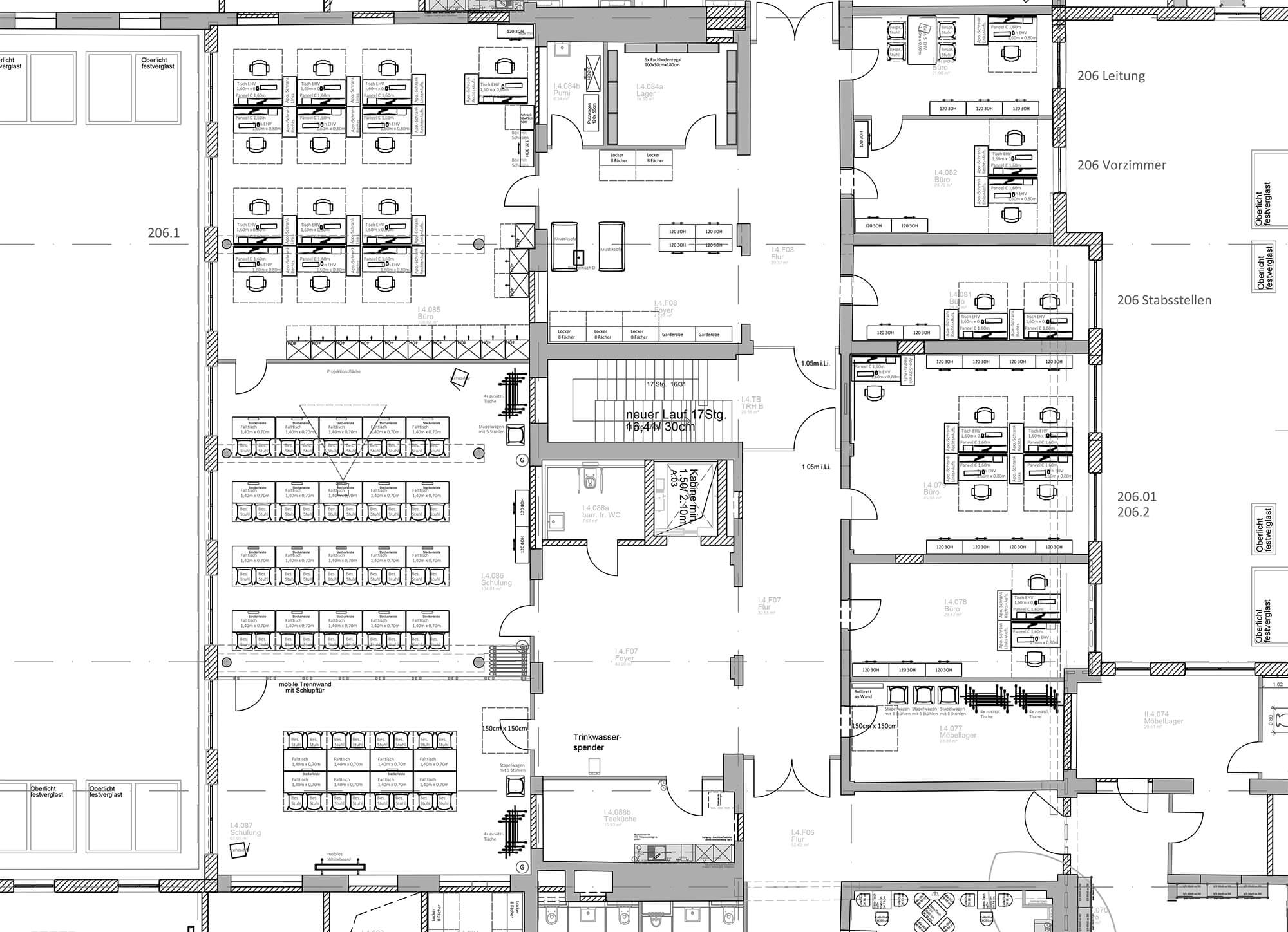
Objektplanung Innenräume für das Gebäude der alten Bundesbahndirektion in Wuppertal. Entwurf, Planung, Konstruktion und Einrichtung von öffentlichen und nicht-öffentlichen Bereichen.