Logistik

Architektur

2017

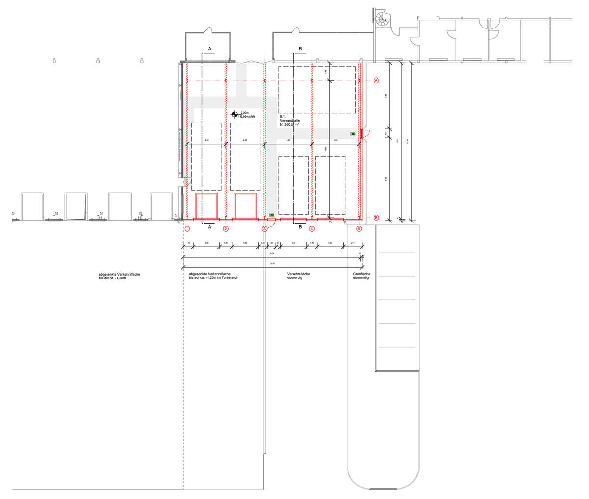
Entwurf und Umsetzung einer Logistikhalle. Bauantrag im März 2017, Baubeginn im Juli 2017 Fertigstellung Dezember 2017