Studio Neumann
Paris 2023-24
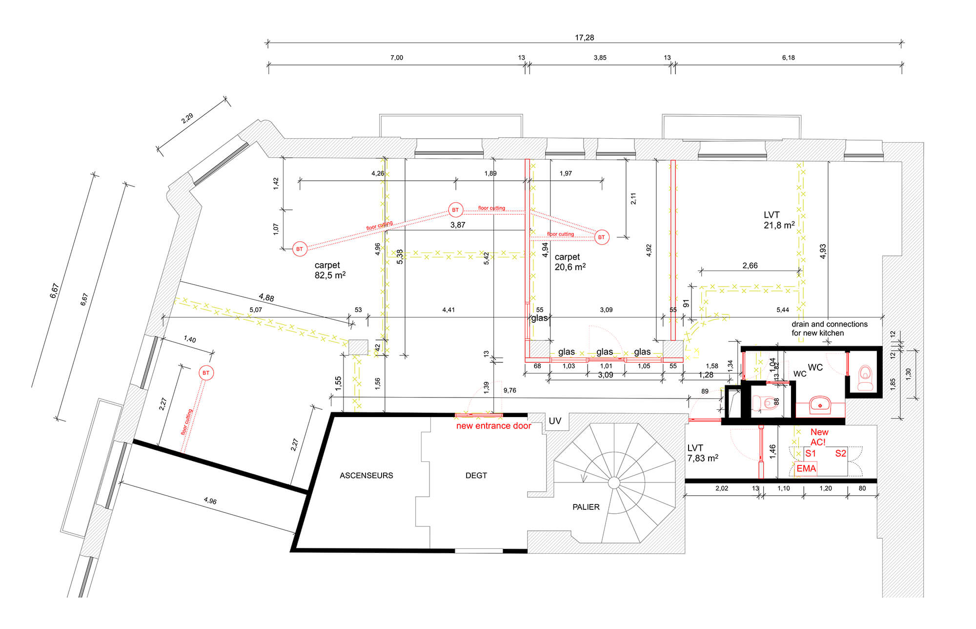
Entwurfs- und Ausführungsplanung sowie anschließende Bauüberwachung zur Sanierung einer Bürofläche im 16. Pariser Arrondissement.