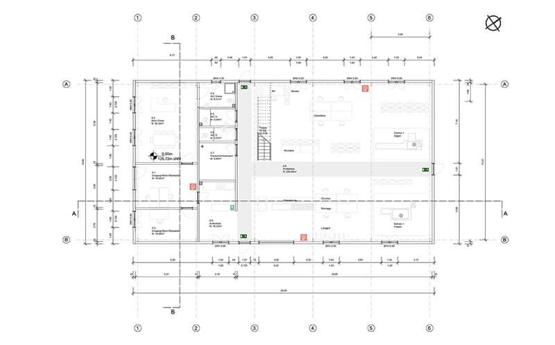
Produktion

Architektur

Hagen, 2015

Entwurf und Umsetzung einer Produktionshalle für einen mittelständischen Betrieb in Hagen. Fertigstellung November 2016.